ADU
Accessory Dwellings Unlimited
Home
Units
All Plans
Studios
1 Bedroom
2 Bedroom
3 Bedroom
Live/Work
Completed Builds
FAQs
About
Contact
All plans
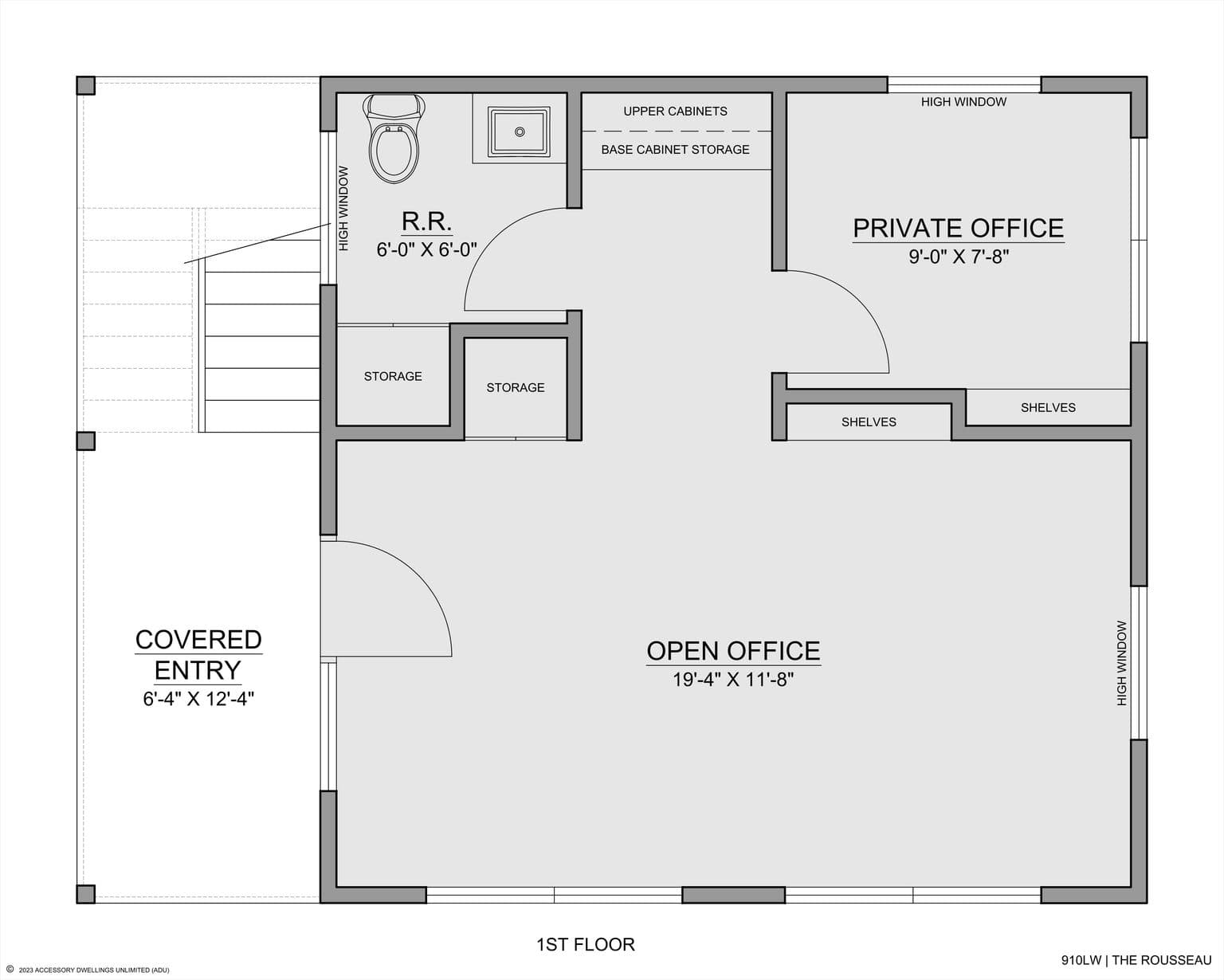
The Rousseau
The Rousseau — Studio, 455 sqft — ADU