ADU
Accessory Dwellings Unlimited
Home
Units
All Plans
Studios
1 Bedroom
2 Bedroom
3 Bedroom
Live/Work
Completed Builds
FAQs
About
Contact
All plans
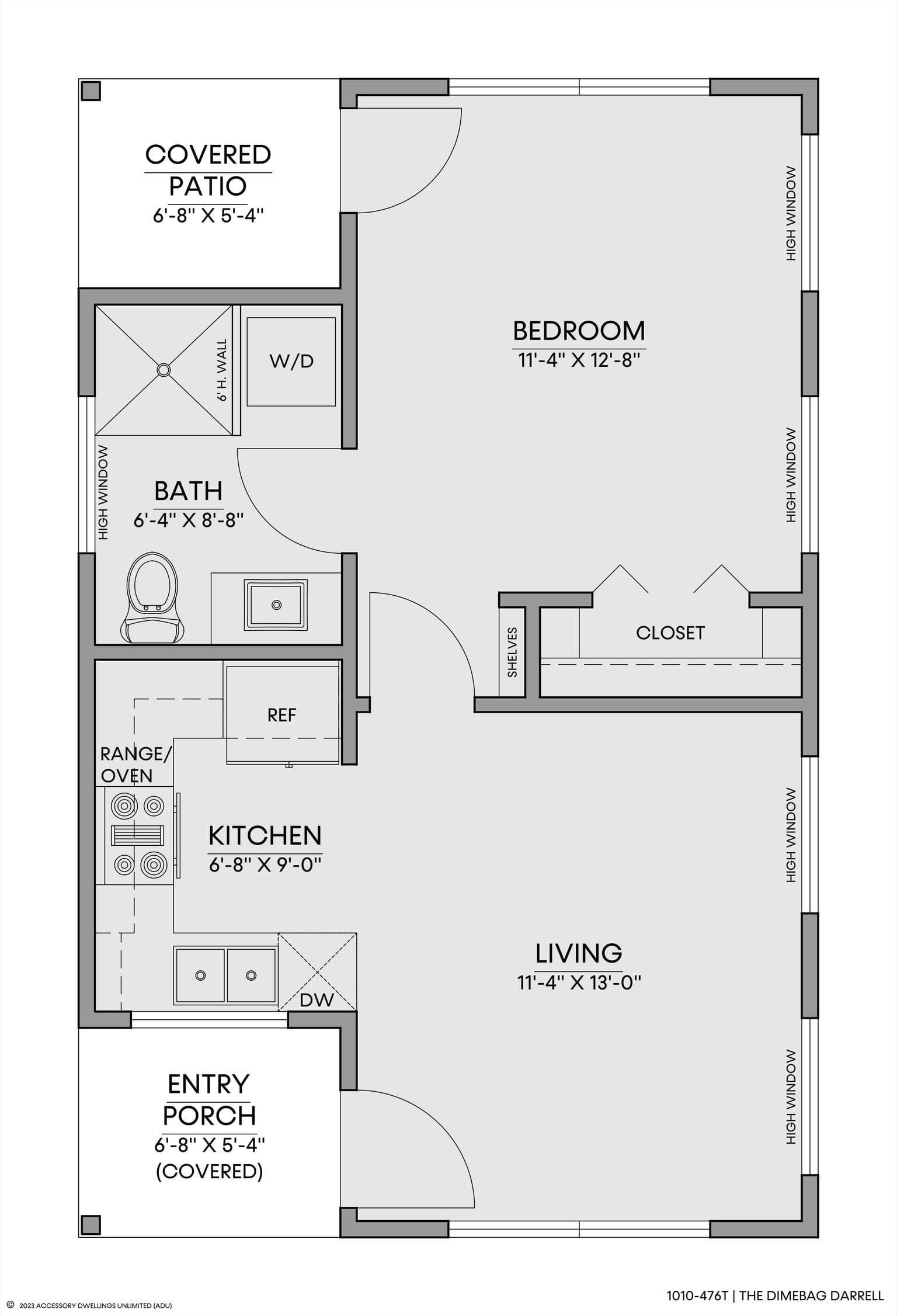
The Dimebag Darrell
The Dimebag Darrell — 1 BR, 476 sqft — ADU